Categorie
BIM
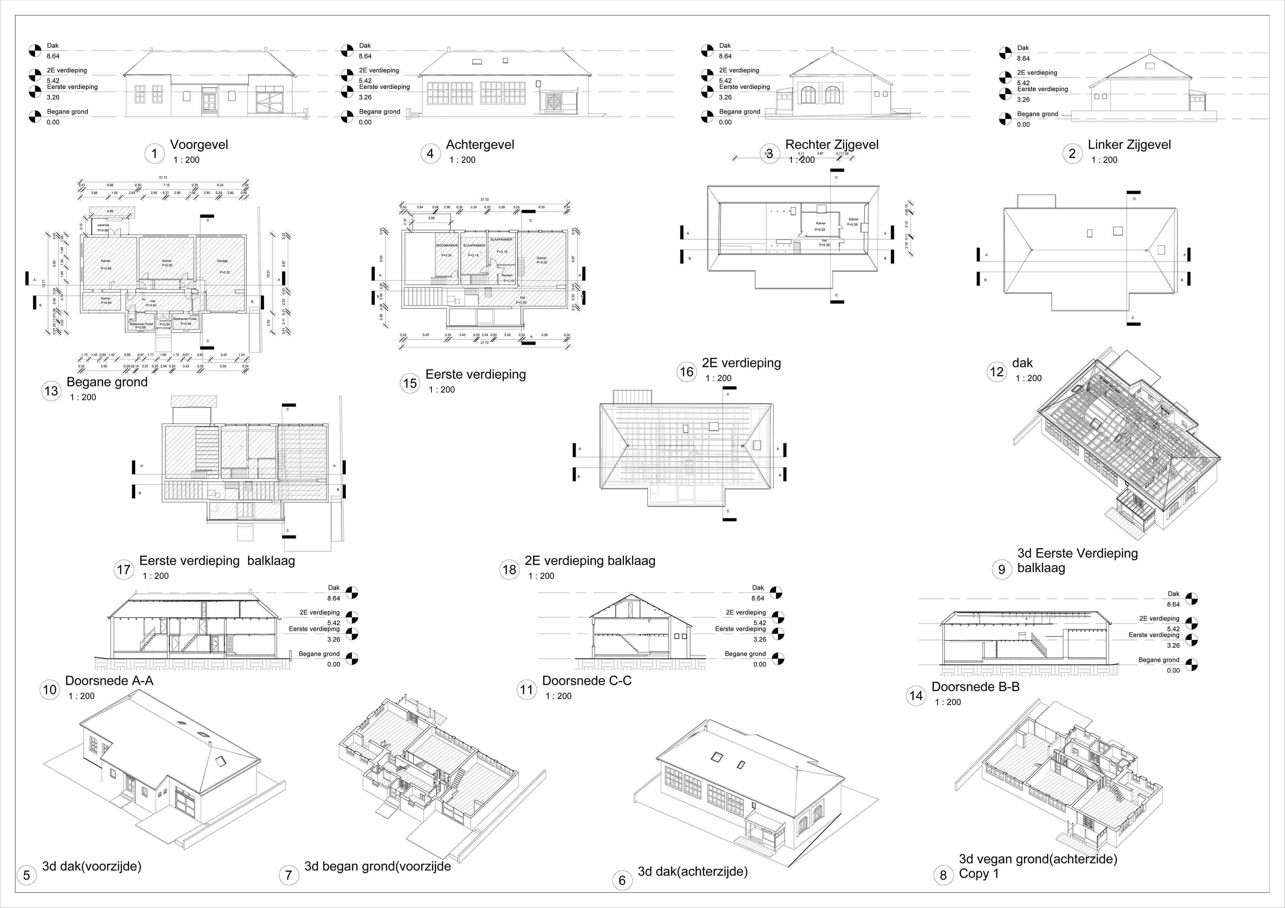
About this project

Client : Netherland 
Have been working for the last 4 years. 
Input : We have received the 3D scan data in .rcp format.  
Output : 3D Revit Model (.rvt and .ifc) and 2D plans, elevations and sections (.rvt and .pdf)