Partners in Geospatial and CAD Services
About Us
Vision
World Wide Services
Leadership
Life@I-Tech Lance
Our Team
Market We Serve
Office & Location
Our Capabilities
CAD Conversion and Drafting
Point Cloud To CAD
GIS
Telecommunications
Photogrammetry
LiDAR
Remote Sensing
Utility Mapping
BIM
3D visualization
Reference
CAD Conversion and Drafting
Point Cloud To CAD
GIS/Photogrammetry/LiDAR/ Remote Sensing
Manhole
Utility Mapping
BIM
Marketing Floor Plan & 3D visualization
Marketing Floor Plan
Telecom
Career
Contact Us
Categorie
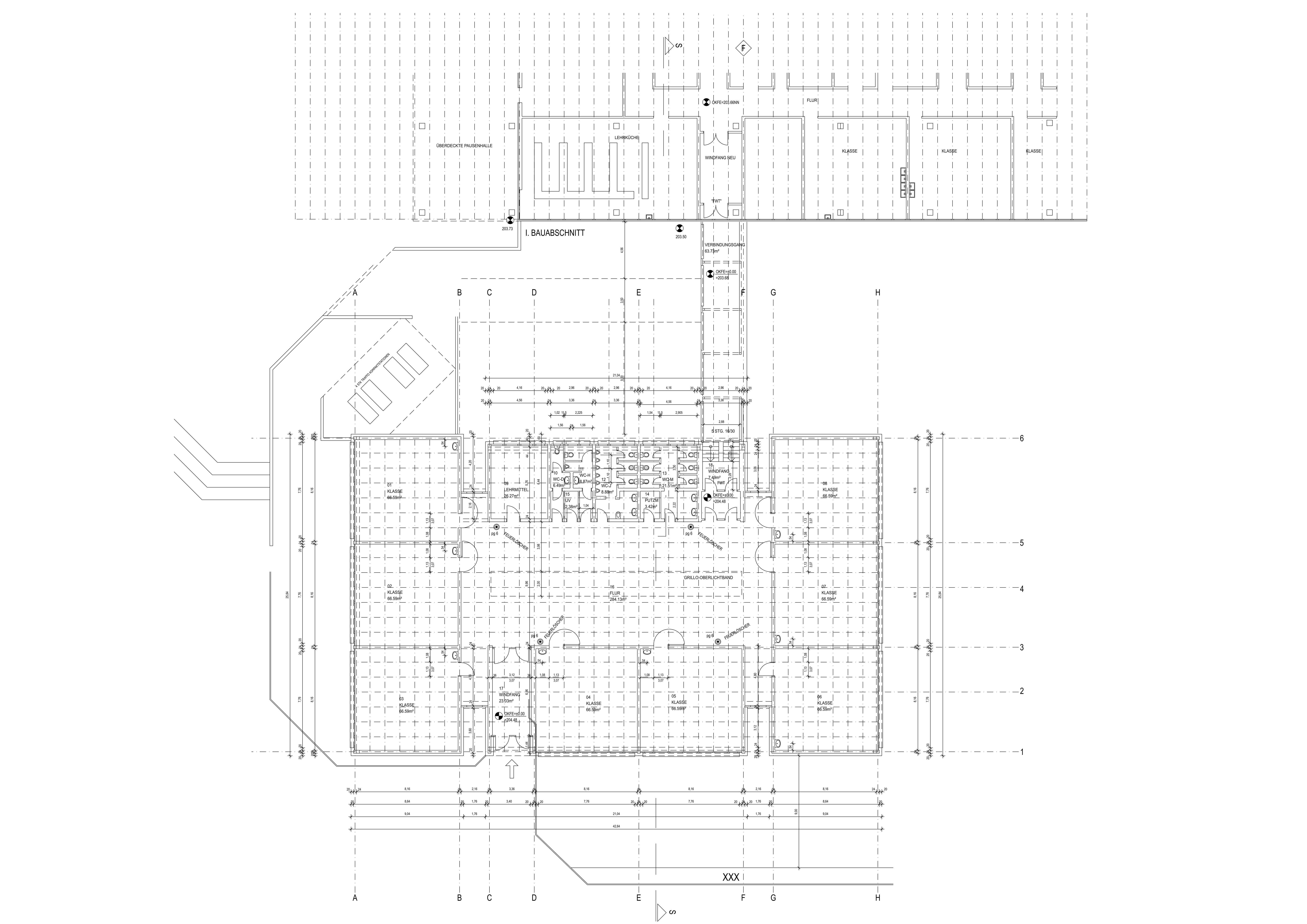
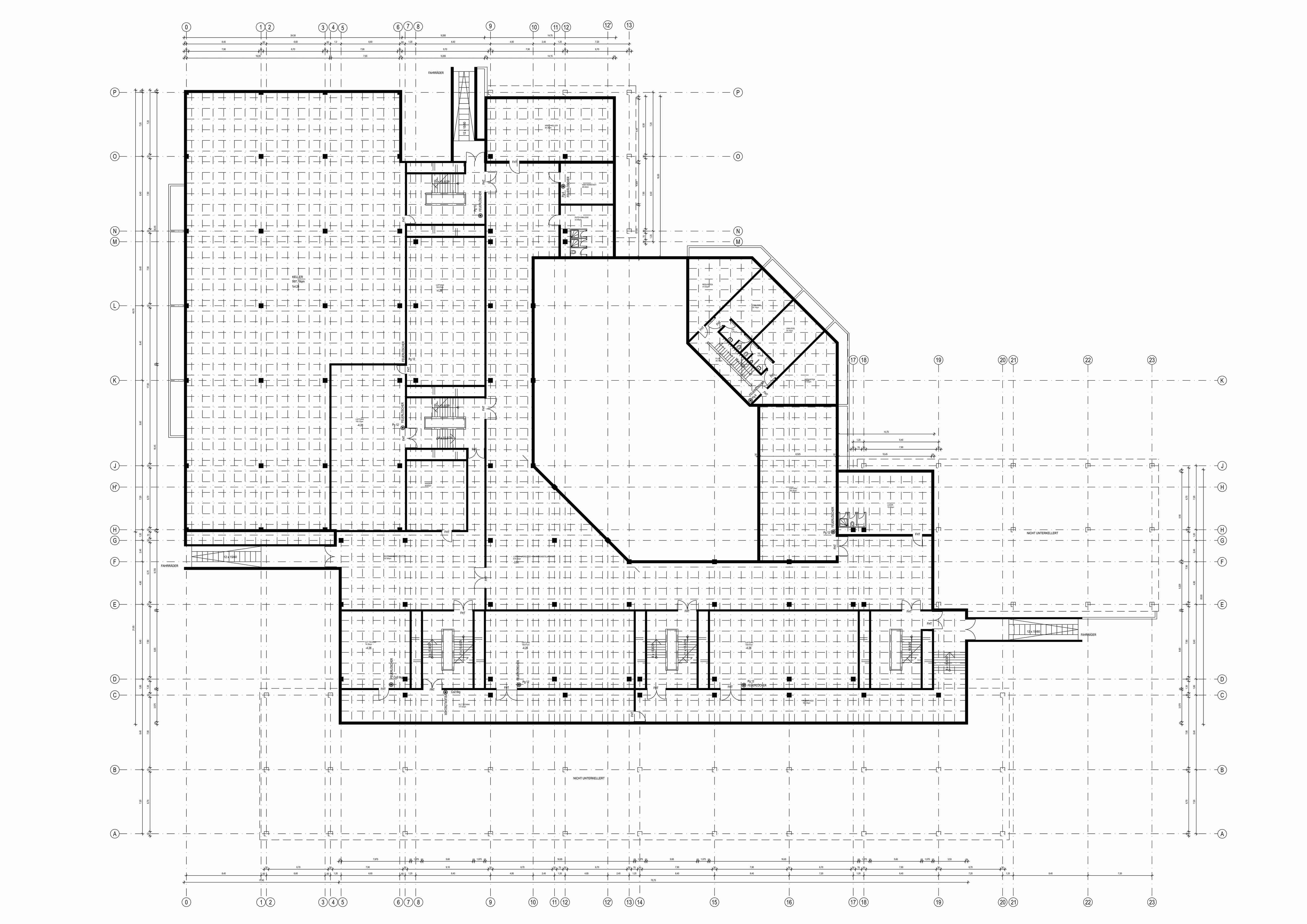
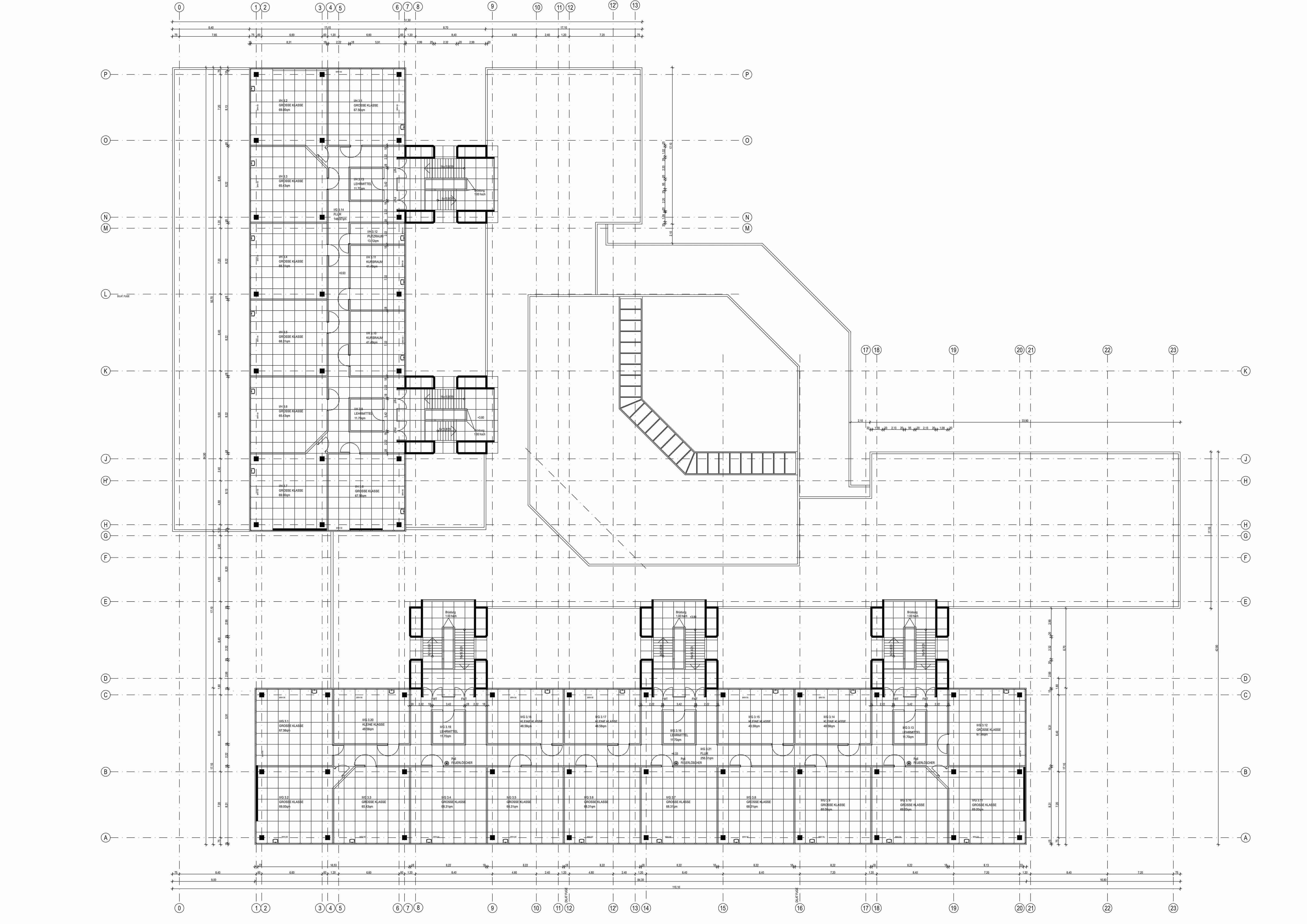
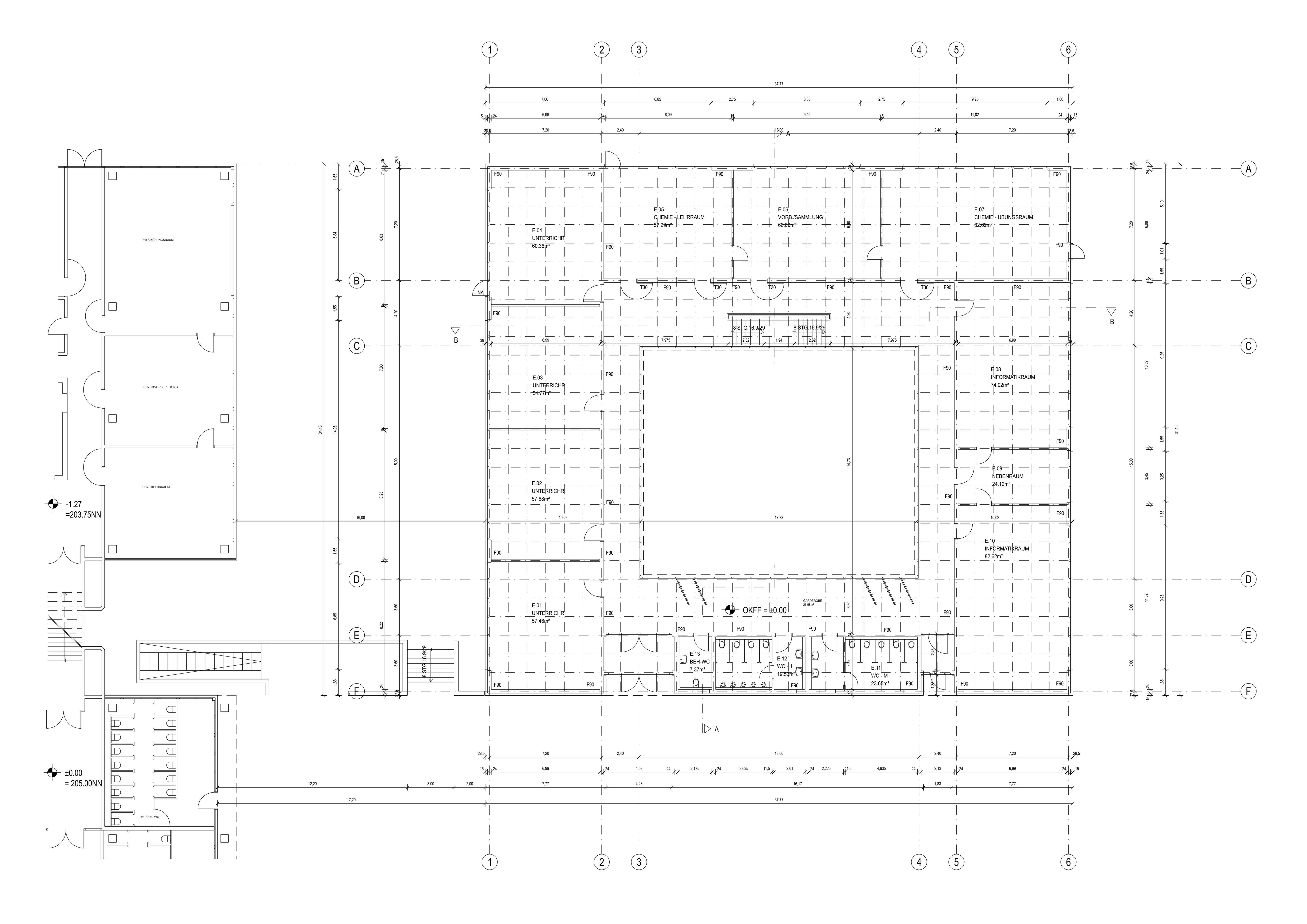
CAD Conversion and Drafting
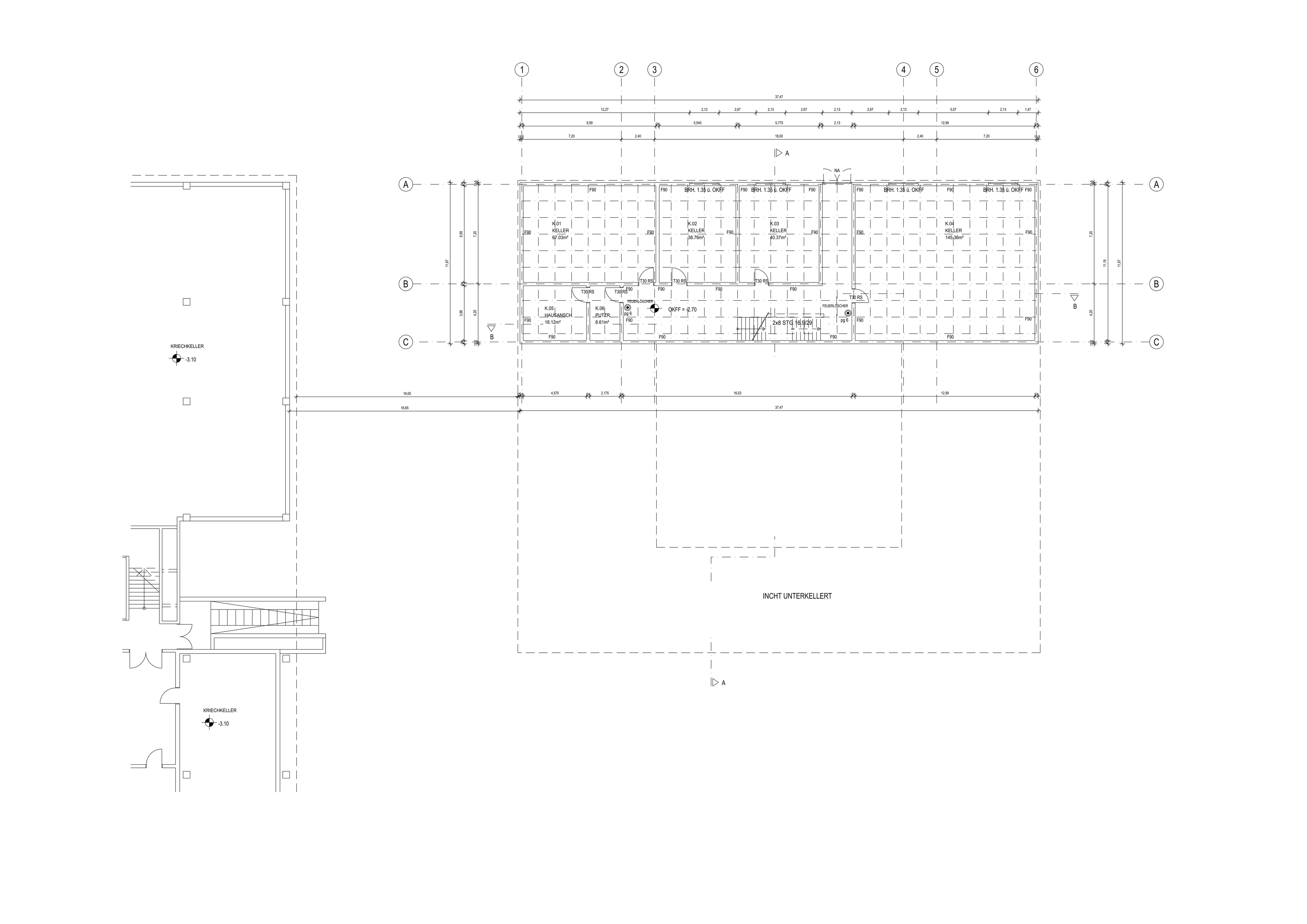
About this project
Client : German
Input : Scan files (.pdf)
Output : .dwg