Categorie
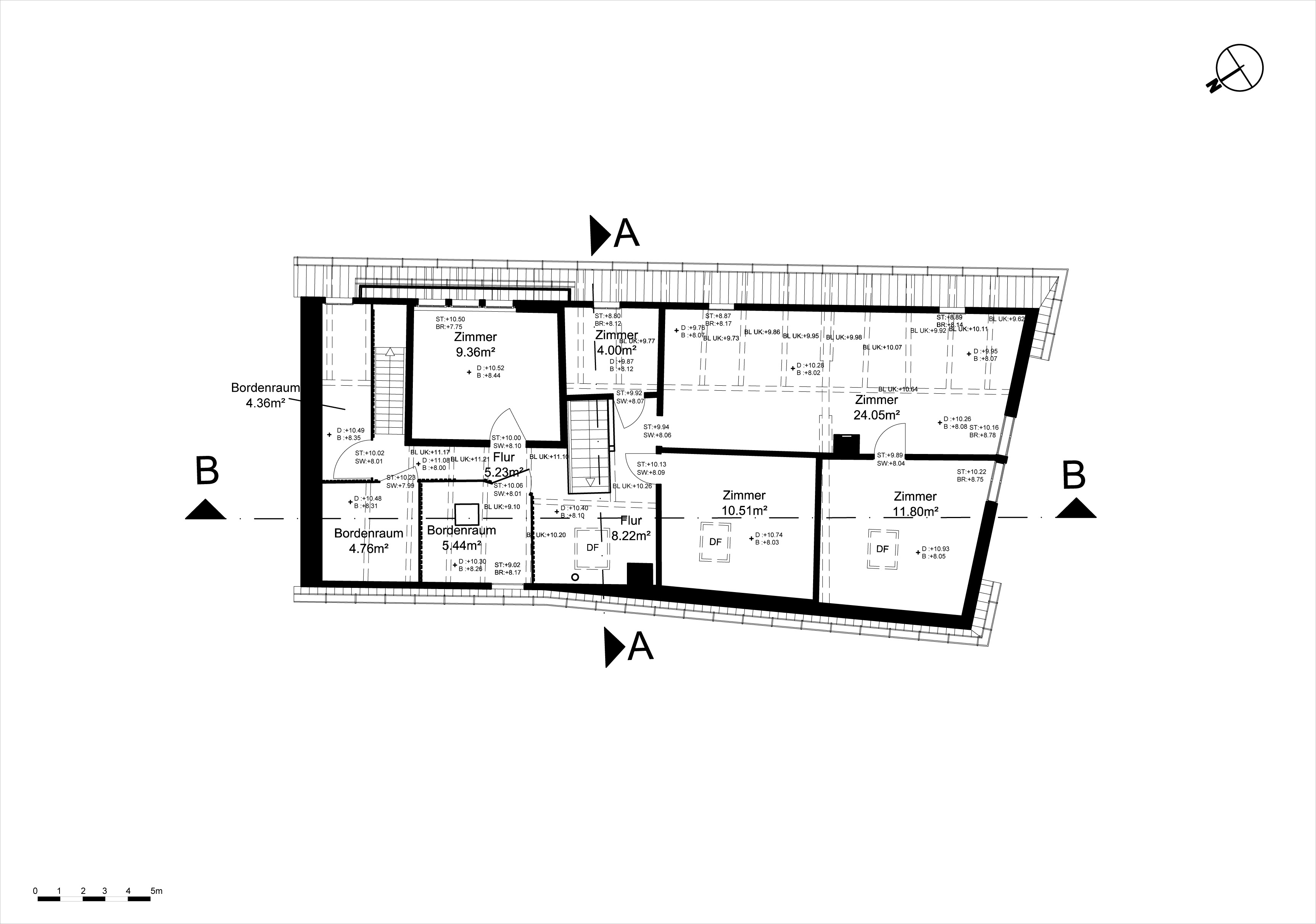
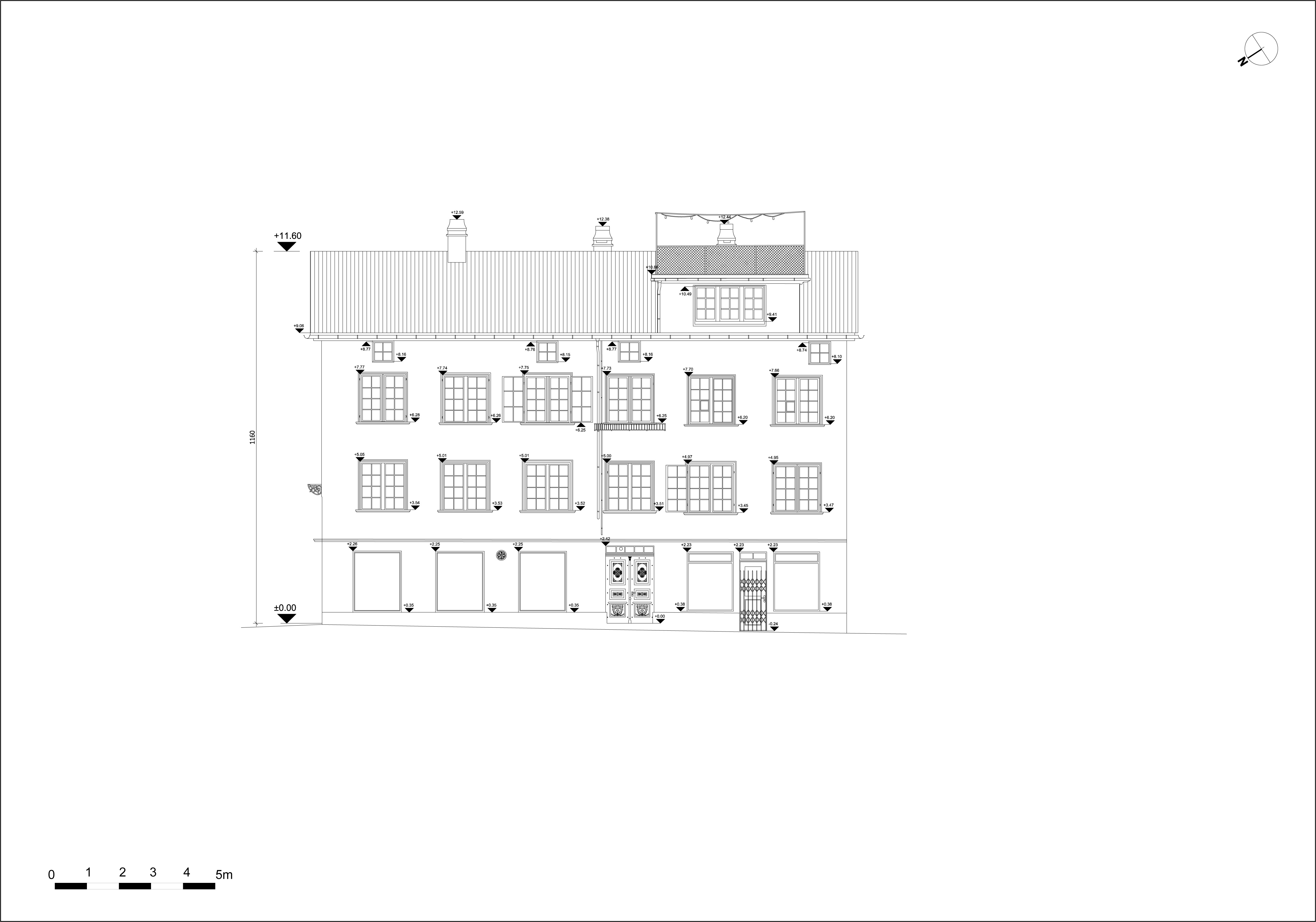
Point Cloud To CAD
About this project

Client : Switzerland
Have been working for the last 6 years.
Input : We have received the 3D scan data in .e57 format. Google location map and specication.
We are providing FTP space to our clients to upload the point cloud scan data.
Output : .dwg and .pdf