Categorie
Point Cloud To CAD
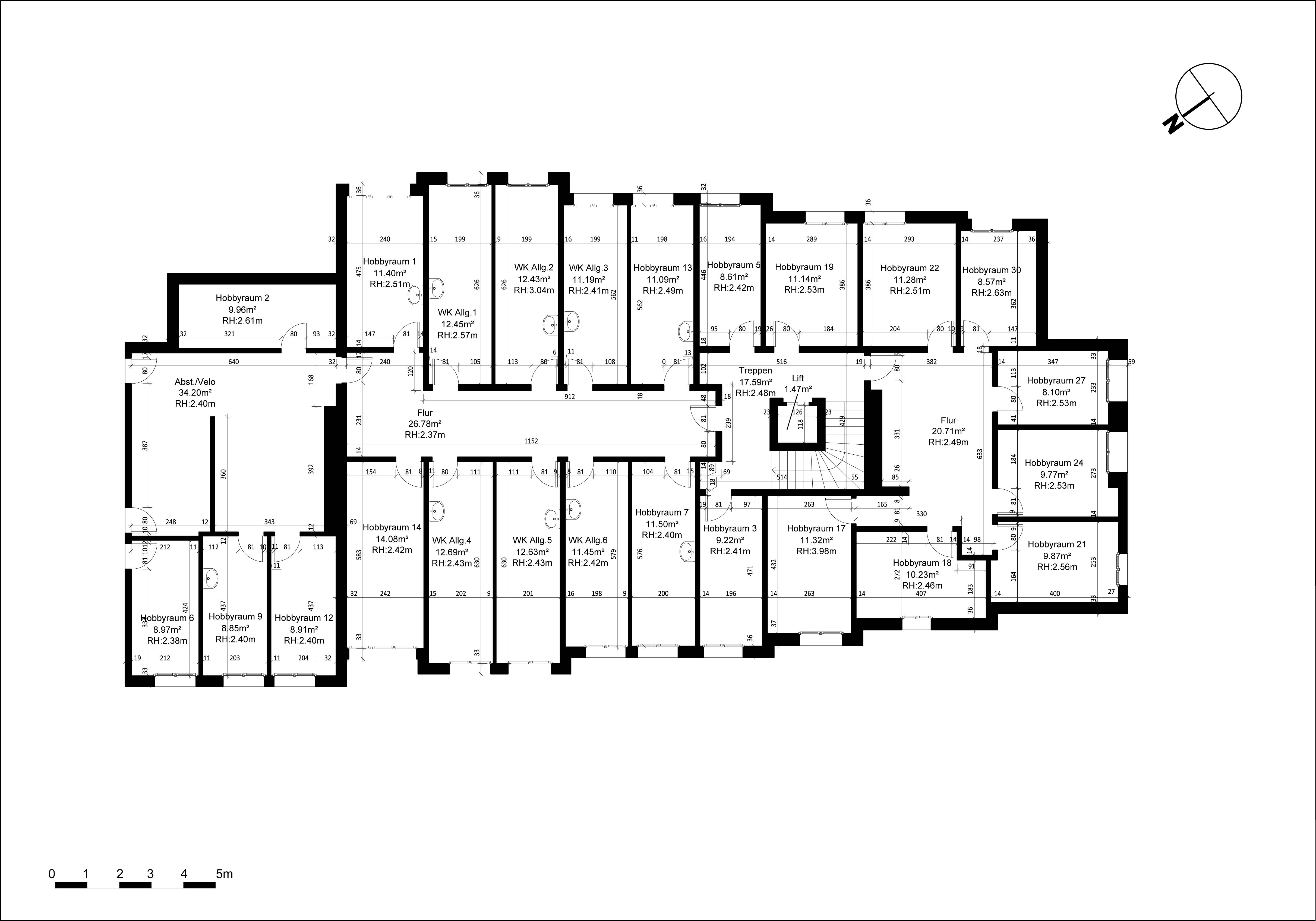
About this project

Client : German
Project : Trubengass 7, 9
Input : We have received the 3D scan data in .e57 format.
Output : .dwg and .pdf