Categorie
Point Cloud To CAD
About this project

Client : Switzerland
Project : Zwislenstrasse 15
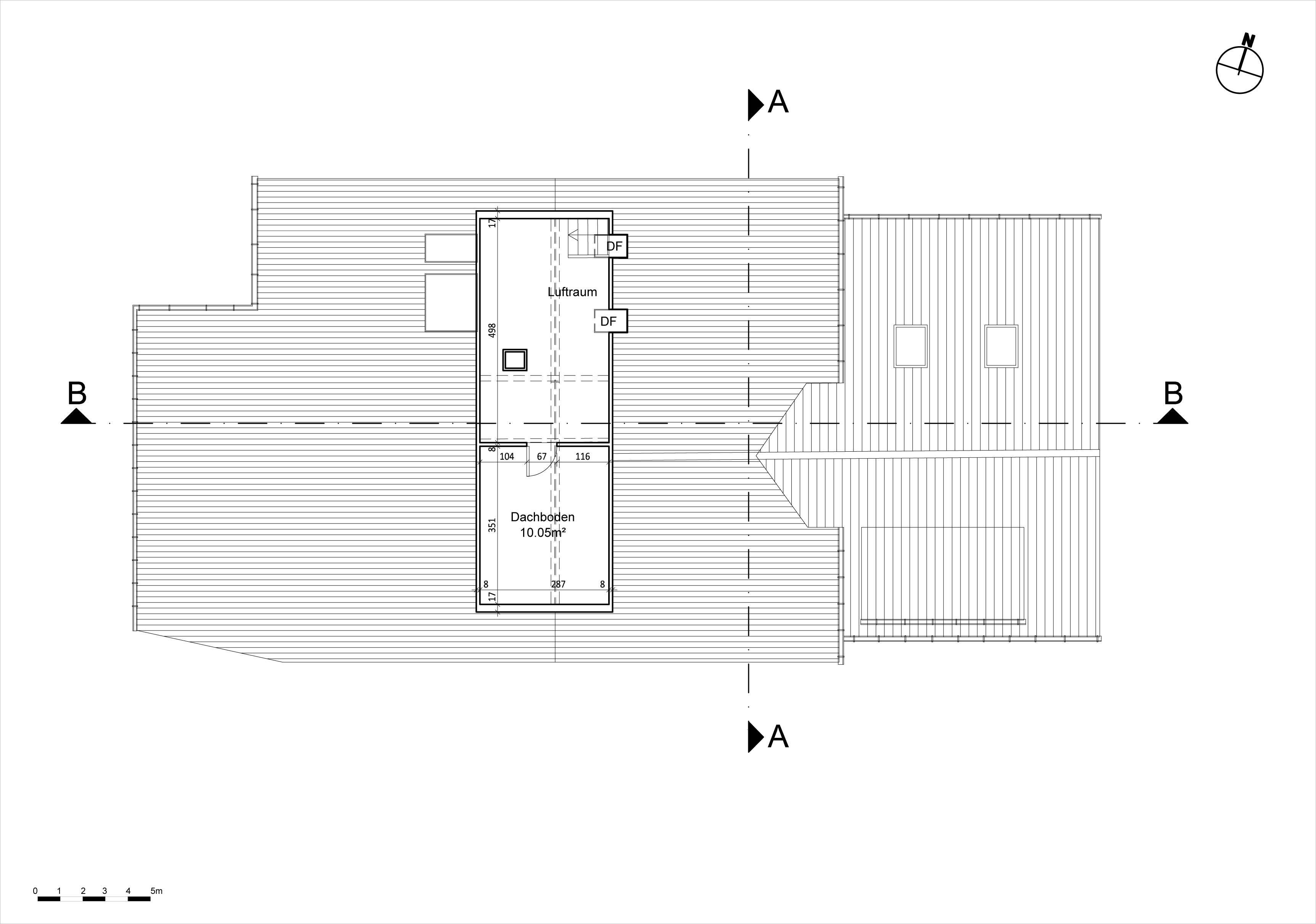
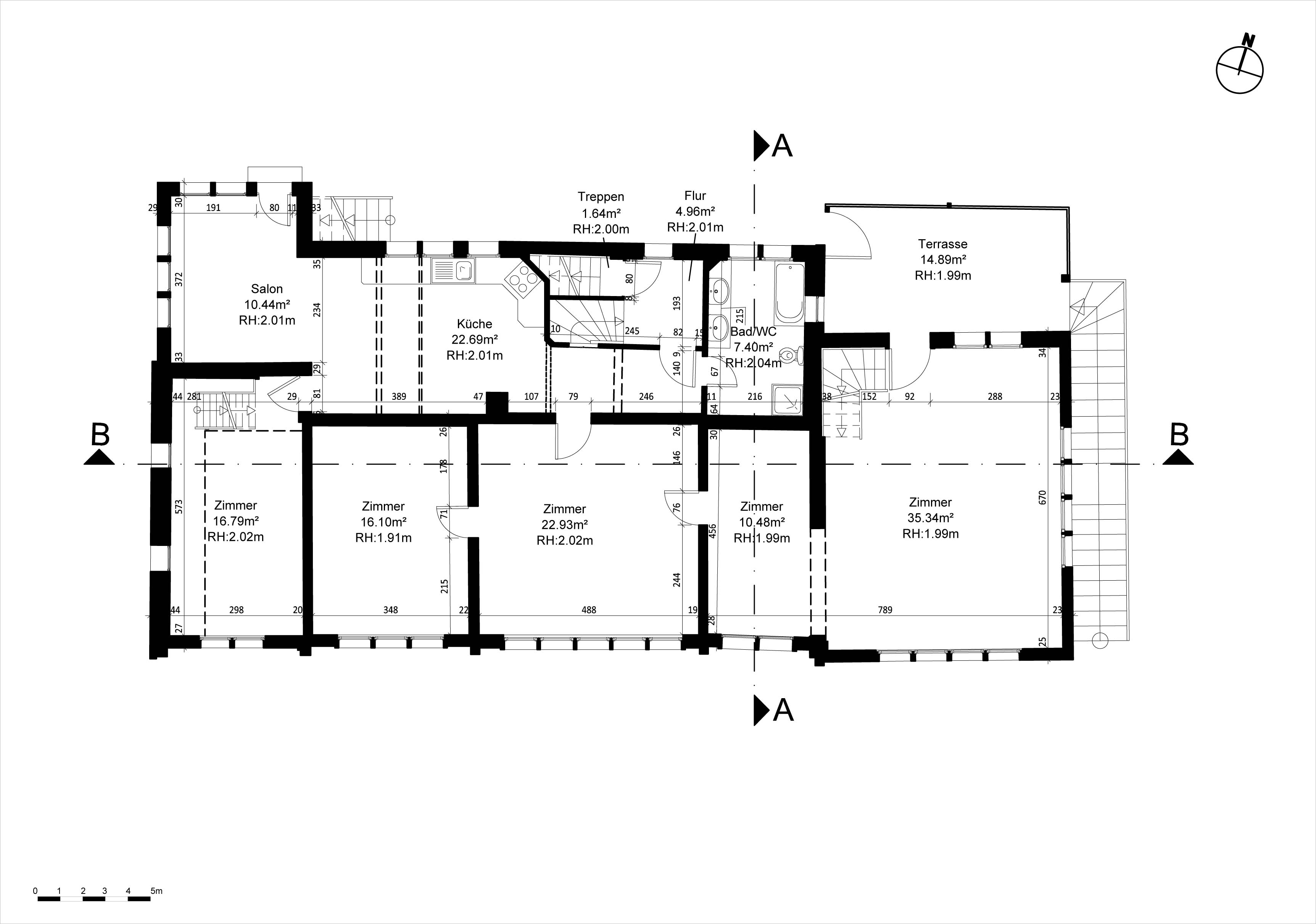
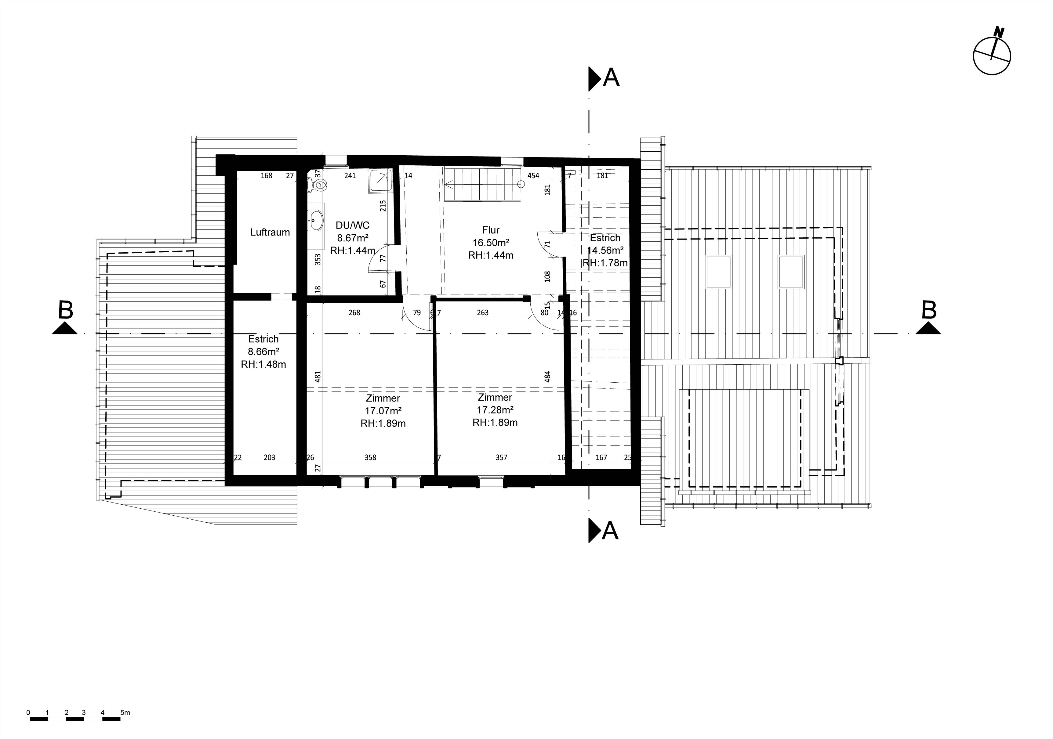
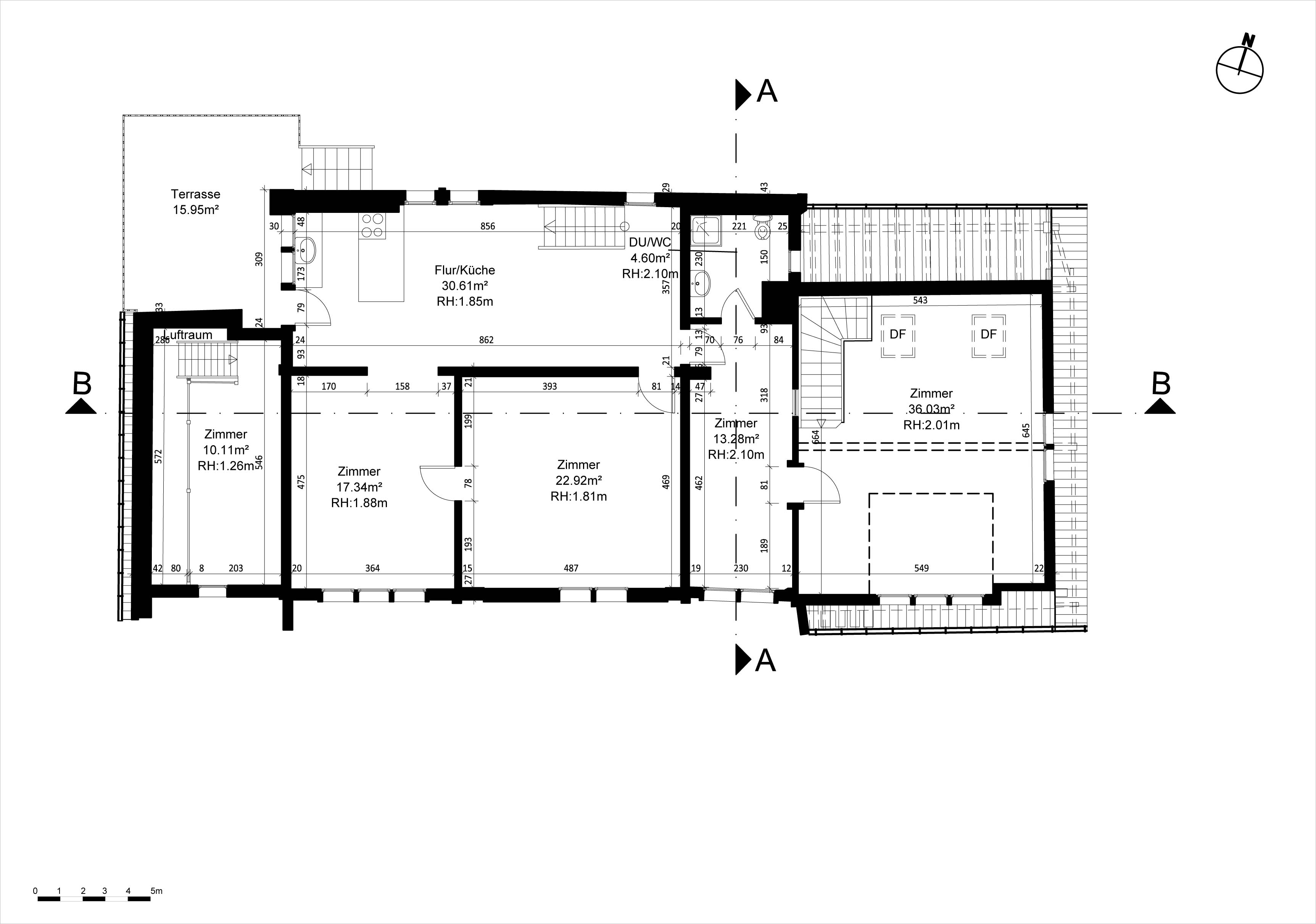
Input : We have received the 3D scan data in .e57 format.
Output : .dwg and .pdf